We are building the Drysdale 30 with Porter Davis.
We love so many things about this floor plan.
We've chosen the Gable facade.

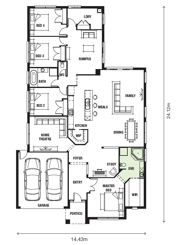
We’ve made a few modifications to the floor plan:
- extended the garage by 2 meters to make room for a mudroom / linen / store room
- spa option
- created an alcove next to the kitchen for my buffet to go
We can't wait to cook in our new kitchen! Big oven. HUGE Pantry! Lots of bench space!
We love the little study nook - which will become our ‘music room’.
The open family / meals area is nice and open and will easily fit our huge dining table.
We like how the boys bedrooms are not right next to the main living area and there is the rumpus for their lego and toys. The boys will also have a bigger bathroom than they do now.
I also love the laundry! It’s HUGE!!! and I love how it’s at the back of the house and near the boys’ bedrooms (no excuse for not putting their dirty washing in there now! - I won’t hold my breath though!)
We'll have a lovely big ensuite and walk in robe.
The extra bedroom will become our ‘study / sewing room’.
All pictures in this post are screen shots from the Porter Davis website.














No comments:
Post a Comment